ИЗВЕЩЕНИЕ о проведении аукциона 12.04.2021 по продаже объектов недвижимого имущества в электронной форме
Организатор аукциона и Продавец: комитет по управлению имуществом города Череповца (далее Продавец).
Местонахождение Продавца: 162608, Вологодская обл., г. Череповец, пр. Строителей, д. 4А, тел.
Реквизиты решения об условиях приватизации муниципального имущества: Прогнозный план (программа) приватизации муниципального имущества на 2021−2023 годы, утвержденный решением Череповецкой городской Думы
Место, дата и время проведения аукциона: Аукцион состоится 12 апреля 2021 года в 10 часов 00 минут на электронной площадке «Сбербанк-АСТ», размещенной на сайте http://utp.sberbank-ast.ru в сети Интернет, в соответствии с требованиями статьи 32.1 Федерального закона
Способ приватизации муниципального имущества: аукцион.
Состав участников аукциона: открытый.
Форма подачи предложений по цене: открытая.
На аукцион выставляются:
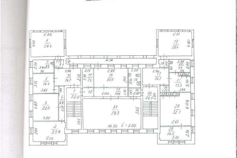
Лот № 1. Нежилое помещение с кадастровым номером 35:21:0302009:1296 площадью 586,6 кв. м, расположенное по адресу: Вологодская область, г. Череповец, ул. Остинская, д. 36А, этаж — 1, 2.
Начальная цена имущества — 20 440 тыс. руб. (в т. ч. НДС)
Шаг аукциона — 1 022 тыс. руб.
Размер задатка — 4 088 тыс. руб.
Обременения (ограничения): помещение обременено правом аренды сроком до 18.10.2035.
Лот № 2. Нежилое помещение с кадастровым номером 35:21:0203011:6109 площадью 18 кв. м, расположенное по адресу: Вологодская область, г. Череповец, ул. Красная, д. 3А.
Начальная цена имущества — 478 тыс. руб. (в т. ч. НДС)
Шаг аукциона — 23,9 тыс. руб.
Размер задатка — 95,6 тыс. руб.
Лот № 3. Нежилое помещение (офис) с кадастровым номером 35:21:0203009:1392 площадью 107,4 кв. м, расположенное по адресу: Вологодская область, г. Череповец, пр-кт. Победы, д. 185, этаж — 1, пом. 2Н.
Начальная цена имущества — 3 929,8 тыс. руб. (в т.ч. НДС).
Шаг аукциона — 196,4 тыс. руб.
Размер задатка — 785,96 тыс. руб.
Лот № 4. Нежилое здание с кадастровым номером 35:21:0401018:2435 площадью 1067,1 кв. м, расположенное по адресу: Вологодская область, г. Череповец, ул. Устюженская, д. 14, 3-этажное, в том числе подземных 1.
Одновременно проводится продажа земельного участка с кадастровым номером 35:21:0401018:180 площадью 5 059 кв. м и разрешенным использованием «эксплуатация здания, для размещения объектов, характерных для населенных пунктов», расположенного по адресу: Вологодская область, г. Череповец, ул. Устюженская, д. 14.
В соответствии с Правилами землепользования и застройки города Череповца, утвержденными решением Череповецкой городской Думы
Обременения (ограничения): земельный участок частично находится в охранных зонах инженерных сетей.
Начальная цена имущества — 15 522 тыс. руб., в том числе:
— здание — 2 542 тыс. руб. (в т.ч. НДС);
— земельный участок — 12 980 тыс. руб. (НДС не облагается).
Шаг аукциона — 776,1 тыс. руб.
Размер задатка — 3 104,4 тыс. руб.
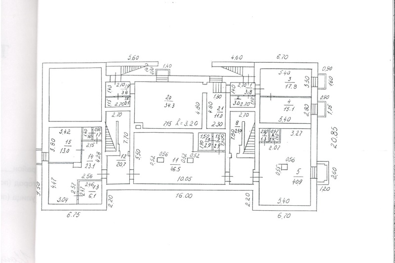
Лот № 5. Нежилое здание (столовая № 21) с кадастровым номером 35:21:0104004:71 площадью 1311,9 кв. м, расположенное по адресу: Вологодская область, г. Череповец, ул. Окружная, д. 16, 2-этажное.
Одновременно проводится продажа земельного участка с кадастровым номером 35:21:0104004:52 площадью 4223,0 кв. м и разрешенным использованием «эксплуатация предприятия торговли, общепита, земли общего пользования», расположенного по адресу: Вологодская область, г. Череповец, ул. Окружная, д. 16.
В соответствии с Правилами землепользования и застройки города Череповца, утвержденными решением Череповецкой городской Думы
Обременения (ограничения): Земельный участок находится в границах зоны Н-1 Санитарно-защитная зона предприятий, сооружений и иных объектов, частично в охранных зонах инженерных сетей.
Начальная цена имущества — 2 999 тыс. руб., в том числе:
— здание — 1 877,0 тыс. руб. (в т.ч. НДС);
— земельный участок — 1 122,0 тыс. руб. (НДС не облагается).
Шаг аукциона — 149,95 тыс. руб.
Размер задатка — 599,8 тыс. руб.
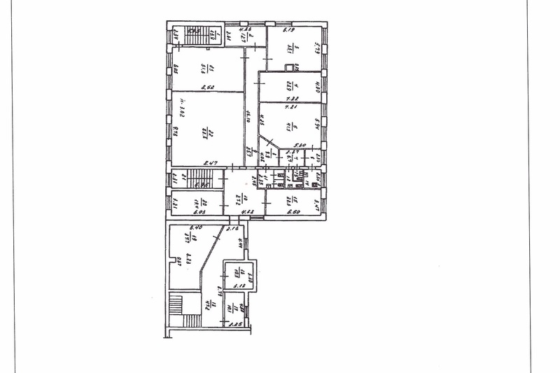
Лот № 6. Нежилое здание с кадастровым номером 35:21:0401016:245 площадью 803,3 кв. м, расположенное по адресу: Вологодская область, г. Череповец, ул. Ленина, д. 129, 3-этажное, в том числе подземный 1.
Одновременно проводится продажа земельного участка с кадастровым номером 35:21:0401016:166 площадью 3 778 кв. м и разрешенным использованием «эксплуатация здания, для размещения объектов дошкольного, начального, общего и среднего (полного) общего образования», расположенного по адресу: Вологодская область, г. Череповец, ул. Ленина, д. 129, а также движимого имущества:
— пластинчатый теплообменник AlfaLaval;
— клапан балансировочный муфтовый;
— клапан балансировочный фланцевый dy40 Danfos — 2 шт.;
— контроллер SIEMENS;
— погружной датчик температуры, 100 мм, SIEMENS — 2 шт.;
— регулирующий клапан фланцевый SIEMENS — 2 шт.;
— теплосчетчик MULTIСAL 601 UF;
— циркуляционный насос Grundfos ДУ25;
— циркуляционный насос Grundfos с реле Ду32;
— электропривод SIEMENS — 2 шт.;
— датчик температуры наружного воздуха SIEMENS;
— манометр показывающий, 0−10 Мпа;
— реле давления Danfos;
— водосчетчик ОСВУ 32 со штуцерами;
— объектовая станция «стрелец мониторинг»;
— система оповещения о пожаре;
— система охранной сигнализации.
В соответствии с Правилами землепользования и застройки города Череповца, утвержденными решением Череповецкой городской Думы
Обременения (ограничения): земельный участок частично находится в охранных зонах инженерных сетей.
Начальная цена имущества — 17 798 тыс. руб., в том числе:
— здание — 7 471 тыс. руб. (в т.ч. НДС);
— движимого имущества, указанного в Приложении — 210 тыс. руб. (в т.ч. НДС),
— земельный участок — 10 117 тыс. руб. (НДС не облагается).
Шаг аукциона — 889,9 тыс. руб.
Размер задатка — 3 559,6 тыс. руб.
Порядок, место и время приема заявок: при приеме заявок от претендентов оператор ЭП обеспечивает регистрацию заявок и прилагаемых к ним документов в журнале приема заявок. Каждой заявке присваивается номер с указанием даты и времени приема заявок и в течение одного часа со времени поступления заявки ЭП сообщает претенденту о ее поступлении путем направления уведомления с приложением электронных копий зарегистрированной заявки и прилагаемых к ней документов.
Заявки на участие в аукционе принимаются в электронной форме посредством системы электронного документооборота на сайте ЭП http://utp.sberbank-ast.ru, через оператора ЭП, в соответствии с регламентом ЭП, с 00 час. 00 мин 05 марта 2021 года по 00 час. 00 мин 05 апреля 2021 года (время Московское).
Определение участников аукциона состоится: 08 апреля 2021 года.
Претендент не допускается к участию в аукционе по следующим основаниям:
представленные документы не подтверждают право претендента быть покупателем в соответствии с законодательством Российской Федерации;
представлены не все документы в соответствии с перечнем, указанным в информационном сообщении, или оформление указанных документов не соответствует законодательству Российской Федерации;
заявка подана лицом, не уполномоченным претендентом на осуществление таких действий;
не подтверждено поступление в установленный срок задатка на счета, указанные в информационном сообщении.
Перечень документов, представляемых претендентами для участия в аукционе:
- Заявка на участие в аукционе в электронной форме;
Заявки подаются и принимаются одновременно с приложением электронных образцов полного комплекта требуемых для участия в аукционе документов, оформленных надлежащим образом.
Одновременно с заявкой претенденты представляют следующие документы:
Юридические лица:
Заверенные копии учредительных документов;
Документ, содержащий сведения о доле Российской Федерации, субъекта Российской Федерации или муниципального образования в уставном капитале юридического лица (реестр владельцев акций либо выписка из него или заверенное печатью юридического лица и подписанное его руководителем письмо);
Документ, который подтверждает полномочия руководителя юридического лица на осуществлении действий от имени юридического лица (копия решения о назначении этого лица или его избрании) и в соответствии с которым руководитель юридического лица обладает правом действовать от имени юридического лица без доверенности;
Физические лица предъявляют документ, удостоверяющий личность, или представляют копии всех его листов.
В случае если от имени претендента действует его представитель по доверенности, к заявке должна быть приложена доверенность на осуществление действий от имени претендента, оформленная в установленном порядке, или нотариально заверенная копия такой доверенности.
В случае если доверенность на осуществление действий от имени претендента подписана лицом, уполномоченным руководителем юридического лица, заявка должна содержать также документ, подтверждающий полномочия этого лица.
Соблюдение претендентом указанных требований означает, что заявка и документы, представляемые одновременно с заявкой, поданы от имени претендента.
Покупателями государственного и муниципального имущества могут быть любые физические и юридические лица, за исключением:
— государственных и муниципальных унитарных предприятий, государственных и муниципальных учреждений;
— юридических лиц, в уставном капитале которых доля Российской Федерации, субъектов Российской Федерации и муниципальных образований превышает 25 процентов;
— юридических лиц, местом регистрации которых является государство или территория, включенные в утверждаемый Министерством финансов Российской Федерации перечень государств и территорий, предоставляющих льготный налоговый режим налогообложения и (или) не предусматривающих раскрытия и предоставления информации при проведении финансовых операций (офшорные зоны), и которые не осуществляют раскрытие и предоставление информации о своих выгодоприобретателях, бенефициарных владельцах и контролирующих лицах в порядке, установленном Правительством Российской Федерации.
Понятие «контролирующее лицо» используется в том же значении, что и в статье 5 Федерального закона от 29 апреля 2008 года N 57-ФЗ «О порядке осуществления иностранных инвестиций в хозяйственные общества, имеющие стратегическое значение для обеспечения обороны страны и безопасности государства». Понятия «выгодоприобретатель» и «бенефициарный владелец» используются в значениях, указанных в статье 3 Федерального закона от 7 августа 2001 года N 115-ФЗ «О противодействии легализации (отмыванию) доходов, полученных преступным путем, и финансированию терроризма».
В приватизации имущества не могут участвовать категории физических и юридических лиц, в отношении которых федеральными законами установлены ограничения на участие в гражданских отношениях.
Для участия в аукционе претендент заключает договор о задатке и вносит в безналичном порядке задаток в размере 20% от начальной цены объекта, который включается в счет оплаты приобретаемого на аукционе объекта.
Реквизиты для перечисления задатков:
Задаток в безналичной форме должен поступить: АО «Сбербанк- АСТ», БИК 044525225, ИНН 7707308480, КПП 770401001, кор. счет № 30101810400000000225, р/счет 40702810300020038047.
Назначение платежа: задаток за участие в аукционе по продаже: __________________________ по адресу: ____________________________.
(наименование объекта продажи) (адрес объекта продажи)
Документом, подтверждающим поступление задатка претендента является выписка со счета, указанного в информационном сообщении о проведении продажи имущества. Подтверждением поступления задатка является информация от Оператора о блокировании денежных средств в сумме задатка на лицевом счете Претендента не позднее 00 часов 00 минут 08 апреля 2021.
Данное извещение является публичной офертой для заключения договора о задатке в соответствии со статьей 437 Гражданского кодекса Российской Федерации, а подача претендентом заявки и перечисление задатка являются акцептом такой оферты, после чего договор о задатке считается заключенным в письменной форме.
Доступ к закрытой части предоставляется только зарегистрированным Участникам ЭП. Порядок регистрации Участников ЭП, подачи заявки на участие в торгах и проведении торгов (далее Порядок) представлен ниже.
Порядок регистрации Пользователя в качестве Претендента (Участника):
Для получения регистрации на электронной площадке претенденты представляют оператору ЭП в соответствии с регламентом ЭП, размещенном на сайте http://utp.sberbank-ast.ru/AP/Notice/1027/Instructions:
заявление об их регистрации в качестве Претендента на электронной площадке по форме, установленной оператором ЭП;
адрес электронной почты этого претендента для направления оператором ЭП уведомлений и иной информации.
В срок, не превышающий 3 рабочих дней со дня поступления заявления о регистрации, оператор ЭП осуществляет регистрацию претендента на ЭП или отказывает ему в регистрации в случае непредставления заявления по форме, установленной оператором ЭП, или вышеуказанной информации, и не позднее 1 рабочего дня, следующего за днем регистрации (отказа в регистрации) претендента направляет ему уведомление о принятом решении.
Подача, изменение, отзыв заявки на участие в торгах:
1. Претендент заполняет электронную форму заявки, прикладывает предусмотренные информационным сообщением и документацией о торгах электронные образцы документов.
2.Заявка подается в виде электронного документа, подписанного ЭП Претендента.
3. Одно лицо имеет право подать только одну заявку.
4. Заявки, поданные с нарушением установленного срока, на ЭП не регистрируются.
5. Претендент на этапе приема заявок может подать заявку без наличия достаточной суммы денежных средств на своем личном счете.
Денежные средства в сумме задатка должны быть зачислены на лицевой счет Претендента на УТП не позднее 00 часов 00 минут (время московское) дня определения участников аукциона.
Оператор программными средствами осуществляет блокирование денежных средств в сумме задатка в момент подачи заявки на участие (при их наличии на лицевом счете Претендента на ЭП) либо в 00 часов 00 минут (время московское) дня определения участников, указанного в извещении. Если денежных средств на лицевом счете Претендента недостаточно для осуществления операции блокирования, то в день определения участников Организатору торгов направляется информация о непоступлении Оператору задатка от такого Претендента.
6. В случае если система не принимает заявку, Оператор уведомляет Претендента соответствующим системным сообщением о причине непринятия заявки.
7. Претендент вправе не позднее дня окончания приема заявок отозвать заявку путем направления уведомления об отзыве заявки на ЭП.
8. Изменение заявки осуществляется путем отзыва ранее поданной и подачи новой.
Порядок проведения аукциона.
1. В аукционе имеют право участвовать только Участники ЭП, допущенные к участию в аукционе.
2. Процедура аукциона проводится путем последовательного повышения Участниками начальной цены продажи на величину, равную либо кратную величине «шага аукциона».
«Шаг аукциона» устанавливается Организатором процедуры в фиксированной сумме и не изменяется в течение всего аукциона.
3. В течение 1 (одного) часа со времени начала проведения процедуры аукциона Участники имеют возможность сделать предложение о цене, равное начальной цене продажи.
В случае, если в течение указанного времени не поступило ни одного предложения о цене, аукцион с помощью программно-аппаратных средств ЭП завершается.
В случае, если в течение указанного времени поступило предложение о начальной цене, то время для представления следующих предложений об увеличенной на «шаг аукциона» цене продлевается на 10 (десять) минут со времени представления каждого следующего предложения.
Если в течение 10 (десяти) минут после представления последнего предложения о цене следующее предложение не поступило, аукцион с помощью программно-аппаратных средств ЭП завершается.
4. Срок для подачи предложений о цене обновляется автоматически после улучшения текущего предложения о цене. Время срока подачи предложений отсчитывается с момента подачи последнего (лучшего) предложения (или с начала подачи предложений о цене), отображается в закрытой части ЭП как расчетное время окончания торгов, а также как время, оставшееся до окончания торгов в минутах.
5. В ходе аукциона Оператор программными средствами ЭП обеспечивает отклонение предложения о цене в момент его поступления и соответствующее информирование Участника, в случае если:
-предложение о цене подано до начала или по истечении установленного времени для подачи предложений о цене;
-представленное предложение о цене ниже начальной цены;
-представленное предложение о цене равно нулю;
-представленное предложение о цене не соответствует увеличению текущей цены на величину «шаг аукциона»;
-представленное Участником предложение о цене меньше ранее представленных предложений;
-представленное Участником предложение о цене является лучшим текущим предложением о цене.
6. Победителем аукциона признается участник, предложивший наиболее высокую цену имущества.
7. Оператор прекращает блокирование в отношении денежных средств Участников, не сделавших предложения о цене в ходе торговой сессии по лоту, заблокированных в размере задатка на лицевом счете электронной площадки не позднее одного дня, следующего за днем завершения торговой сессии.
8. Аукцион признается несостоявшимся в следующих случаях:
-не было подано ни одной заявки на участие в аукционе либо ни один из Претендентов не признан участником;
-принято решение о признании только одного Претендента Участником;
-ни один из Участников не сделал предложение о цене.
Решение о признании аукциона несостоявшимся оформляется протоколом об итогах аукциона.
9. Подведение итогов аукциона осуществляется Организатором процедуры в соответствии с Регламентом ТП.
Протокол об итогах аукциона удостоверяет право победителя на заключение договора купли-продажи имущества, и подписывается продавцом не позднее рабочего дня, следующего за днем подведения итогов аукциона.
10. Оператор прекращает блокирование в отношении денежных средств Участников, заблокированных в размере задатка на лицевом счете Участника на площадке после подписания ЭП Организатором процедуры протокола об итогах аукциона, за исключением победителя аукциона.
11. Организатор процедуры посредством штатного интерфейса ТС формирует поручение Оператору о перечислении задатка победителя на указанные в поручении банковские реквизиты.
12. Заключение договора купли-продажи имущества с победителем осуществляется сторонами в форме электронного документа, по форме прилагаемой к информационному сообщению в течении 5 рабочих дней со дня подведения итогов аукциона
Условия и сроки платежа: единовременно в течение 30 дней с даты заключения договора купли-продажи.
Все налоги и сборы оплачиваются в соответствии с законодательством о налогах и сборах.
Форма платежа — путем безналичного перечисления денежных средств на счет Продавца.
Реквизиты для перечисления денежных средств по договору купли-продажи: УФК по Вологодской области (Комитет по управлению имуществом города Череповца л/сч 04303288110), ИНН 3528008860, КПП 352801001, счет получателя средств № 03100643000000013000, счет банка получателя средств № 40102810445370000022 в отделении Вологда банка России // УФК по Вологодской области г. Вологда, БИК 011909101; ОКТМО 19730000, КБК при оплате за нежилое помещение (здание): 81111402043040000410, КБК при оплате за земельный участок: 81111406024040000430.
Порядок возврата задатка: задаток возвращается участникам аукциона, за исключением его победителя, в течение 5 календарных дней со дня подведения итогов аукциона. Претендентам, не допущенным к участию в аукционе — в течение 5 календарных дней со дня подписания протокола о признании претендентов участниками аукциона.
В случае отзыва претендентом в установленном порядке заявки до даты окончания приема заявок поступивший от претендента задаток подлежит возврату в срок не позднее чем 5 дней со дня поступления уведомления об отзыве заявки. В случае отзыва претендентом заявки позднее даты окончания приема заявок задаток возвращается в порядке, установленном для претендентов, не допущенных к участию в продаже имущества.
Если претендент, признанный победителем аукциона, уклоняется (отказывается) от подписания протокола об итогах аукциона, заключения договора купли-продажи, задаток, внесенный в счет обеспечения оплаты имущества, ему не возвращается, а победитель утрачивает право на заключение договора купли-продажи.
В случае признания аукциона несостоявшимся, задаток перечисляется претенденту в течение 5 календарных дней с момента подписания Продавцом протокола об итогах аукциона.
Осуществление осмотра объектов по предварительному согласованию, телефон 8 (8202) 50−01- 25.
Организатор аукциона вправе отказаться от проведения аукциона в любое время, но не позднее чем за три дня до наступления даты проведения.
Извещение об отмене аукциона публикуется Продавцом на официальном сайте торгов РФ www.torgi.gov.ru и на официальном городском сайте www.cherinfo.ru в сети Интернет.
В случае отмены Организатором процедуры (в т.ч. одного или нескольких лотов) на этапе приема заявок или допуска участников, Оператор в течение одного часа возвращает заявки на участие, поданные Претендентами, и прекращает блокирование денежных средств в размере задатка на лицевых счетах таких Претендентов на площадке.
Сведения обо всех предыдущих торгах по продаже муниципального имущества, объявленных в течение года, предшествующего его продаже:
| № лота | Наименование объекта | Способ приватизации | Дата торгов | Причина, по которой торги признаны несостоявшимися |
| 1 | Нежилое помещение с кадастровым номером 35:21:0302009:1296 площадью 586,6 кв. м, расположенное по адресу: Вологодская область, г. Череповец, ул. Остинская, д. 36А, этаж — 1, 2. |
аукцион
| 25.02.2021 | Отсутствие заявок |
| 2 | Нежилое помещение с кадастровым номером 35:21:0203011:6109 площадью 18 кв. м, расположенное по адресу: Вологодская область, г. Череповец, ул. Красная, д. 3А |
аукцион
| 25.01.2021 | Отсутствие допущенных участников аукциона |
| 3 | Нежилое помещение (офис) с кадастровым номером 35:21:0203009:1392 площадью 107,4 кв. м, расположенное по адресу: Вологодская область, г. Череповец, пр-кт. Победы, д. 185, этаж — 1, пом. 2Н. |
аукцион
| 14.09.2020 | Отсутствие заявок |
| 16.11.2020 | ||||
| 25.01.2021 | ||||
| 4 | Нежилое здание с кадастровым номером 35:21:0401018:2435 площадью 1067,1 кв. м, расположенное по адресу: Вологодская область, г. Череповец, ул. Устюженская, д. 14, 3-этажное. Одновременно проводится продажа земельного участка с кадастровым номером 35:21:0401018:180 площадью 5059 кв. м и разрешенным использованием «эксплуатация здания, для размещения объектов, характерных для населенных пунктов», расположенного по адресу: Вологодская область, г. Череповец, ул. Устюженская, д. 14. | аукцион | 16.11.2020 | Отсутствие заявок |
| 25.01.2021 | ||||
| 5 | Нежилое здание (столовая № 21) с кадастровым номером 35:21:0104004:71 площадью 1311,9 кв. м, расположенное по адресу: Вологодская область, г. Череповец, ул. Окружная, д. 16, 2-этажное. Одновременно проводится продажа земельного участка с кадастровым номером 35:21:0104004:52 площадью 4223,0 кв. м и разрешенным использованием «эксплуатация предприятия торговли, общепита, земли общего пользования», расположенного по адресу: Вологодская область, г. Череповец, ул. Окружная, д. 16. | аукцион | 10.04.2020 | Отсутствие заявок |
| 26.05.2020 | ||||
| 28.07.2020 | ||||
| 14.09.2020 | ||||
| 16.11.2020 | ||||
| 6 | Нежилое здание с кадастровым номером 35:21:0401016:245 площадью 803,3 кв. м, расположенное по адресу: Вологодская область, г. Череповец, ул. Ленина, д. 129, 3-этажное, в том числе подземный 1. Одновременно проводится продажа земельного участка с кадастровым номером 35:21:0401016:166 площадью 3 778 кв. м, расположенного по адресу: Вологодская область, г. Череповец, ул. Ленина, д. 129, а также движимого имущества: — пластинчатый теплообменник AlfaLaval; — клапан балансировочный муфтовый; — клапан балансировочный фланцевый dy40 Danfos — 2 шт.; — контроллер SIEMENS; — погружной датчик температуры, 100 мм, SIEMENS — 2 шт.; — регулирующий клапан фланцевый SIEMENS — 2 шт.; — теплосчетчик MULTIСAL 601 UF; — циркуляционный насос Grundfos ДУ25; — циркуляционный насос Grundfos с реле Ду32; — электропривод SIEMENS — 2 шт.; — датчик температуры наружного воздуха SIEMENS; — манометр показывающий, 0−10 Мпа; — реле давления Danfos; — водосчетчик ОСВУ 32 со штуцерами; — объектовая станция «стрелец мониторинг»; — система оповещения о пожаре; — система охранной сигнализации. | аукцион | 25.01.2021 | Отсутствие заявок |
С иной информацией об объектах продажи, имеющейся в распоряжении Продавца, условиями договора купли-продажи, формой заявки, условиями договора о задатке, можно ознакомиться в комитете по управлению имуществом города Череповца по адресу: Вологодская область, г. Череповец, пр. Строителей, д. 4А, каб. 323, телефон
















































